Property Details
Located right near Woorim Beach, this property at 65 North St, Woorim presents a rare opportunity for those seeking endless possibilities for renovation and expansion. With the potential to add on up to 15 metres in height, capturing stunning ocean views over Moreton Bay, properties with such opportunities are scarce in Woorim.
Sitting on a generous 647sqm block, this home is cleverly positioned back from the street, surrounded by natural flora and fully fenced to accommodate more than just cars. With its prime location and potential for enhancement, this property is a unique find that won't last long - act quickly to secure your chance.
Step into the heart of this abode, the stunning open-concept kitchen and dining area, where culinary dreams come to life. Featuring sleek modern appliances, ample counter space, and a charming breakfast bar, this space is perfect for both everyday meals and elegant entertaining.
The living room exudes warmth and serenity, with polished hardwood floors and large windows inviting in natural light. Picture yourself relaxing on plush leather seating amidst carefully curated artwork that adds a touch of personality to your sanctuary.
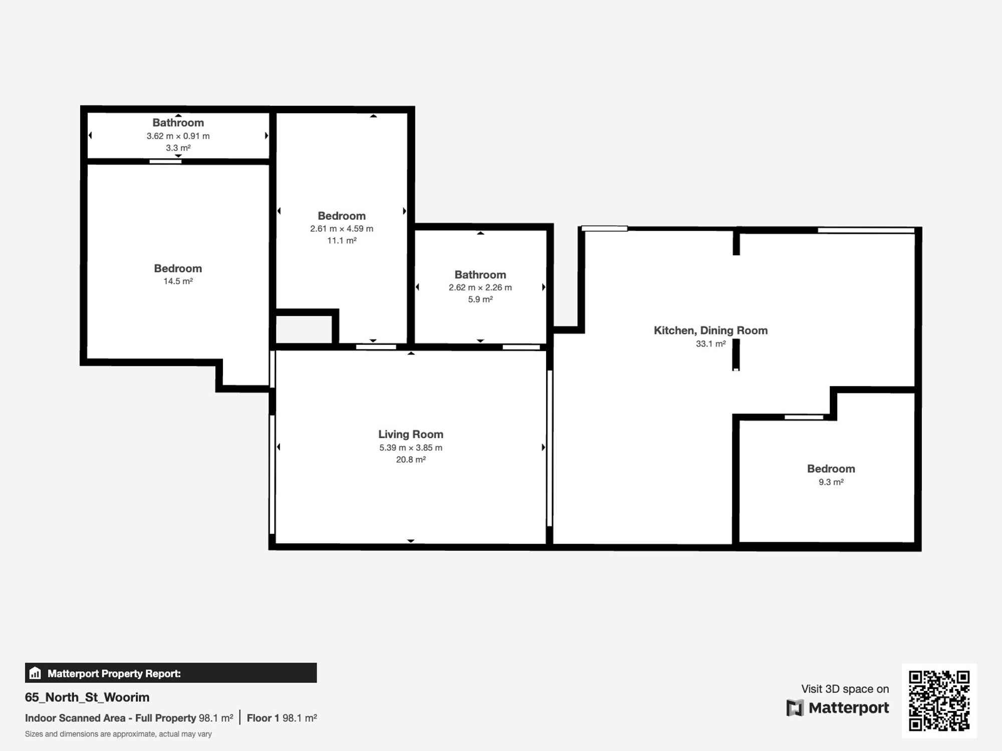
The primary bedroom offers a spacious 15.0 m² retreat for restful nights and rejuvenating mornings, while the additional bedrooms provide versatility to adapt to your evolving needs, whether as a home office, gym, or creative space.
Indulge in self-care rituals in the well-appointed bathrooms, featuring modern fixtures and a spa-like ambiance. The walk-in shower, adorned with gleaming glass, sets the tone for each day, leaving you feeling refreshed and invigorated.
Architectural elements like exposed beams and arched doorways add character and visual interest throughout the home, ensuring a harmonious flow of functionality and aesthetic appeal. This property is more than just a house - it's a canvas for your dreams, a place where memories are made, and a gateway to the lifestyle you've always desired.
Don't let this opportunity slip away. Make 65 North St, Woorim your new address, and open the door to a brighter, more fulfilling future.
Available documents for download
Land area
647 sqm (approx)








































